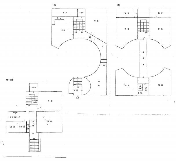
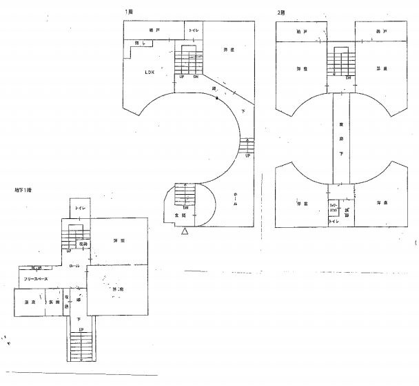
おすすめのエリア 岸和田市 / 堺市中区 / 堺市堺区 / 貝塚市 / 大阪狭山市 / 堺市南区 / 松原市 / 大阪市住吉区 / 堺市西区 / 堺市美原区 1件 新着順 安い順 高い順 おすすめ順 住所ごと順 建物面積の広い順 土地面積の広い順 築年数が新しい順 中古一戸建 堺市西区浜寺昭和町 堺市西区浜寺昭和町2丁 1億2,600万円 - / 330.20㎡ / 5LDK /築27年 /2階建 南海本線「浜寺公園」駅 徒歩5分阪堺電軌阪堺線「船尾」駅 徒歩12分阪和線「東羽衣」駅 徒歩14分 閑静な住宅地ファミリー向け 家から徒歩4分(291m)の場所に堺浜寺昭和郵便局があります♪ ファミリーの方にも嬉しい、建物面積99坪以上の物件となります♪ 南海本線・JR阪和線・阪堺線の3沿線が利用でき交通至便な立地です♪ クロワールはお客様の新生活のサポートをいたします♪ 不動産情報のことなら、クロワールのスタッフまでお気軽にお声かけください(^^) 堺市西区の掲載物件の価格相場 1R ~ 1K 1DK ~ 1LDK 2K ~ 2LDK 3K ~ 3LDK 4K ~ 4LDK以上 価格相場 - - - - 12600万円 募集件数 - - - - 1件 1
家から徒歩4分(291m)の場所に堺浜寺昭和郵便局があります♪
ファミリーの方にも嬉しい、建物面積99坪以上の物件となります♪
南海本線・JR阪和線・阪堺線の3沿線が利用でき交通至便な立地です♪
クロワールはお客様の新生活のサポートをいたします♪
不動産情報のことなら、クロワールのスタッフまでお気軽にお声かけください(^^)